See all 25 photos
$850,000
Est. payment /mo
2,000 SqFt
Active
11901 W Parmer LN #300 Cedar Park, TX 78613
REQUEST A TOUR If you would like to see this home without being there in person, select the "Virtual Tour" option and your agent will contact you to discuss available opportunities.
In-PersonVirtual Tour

UPDATED:
Key Details
Property Type Commercial
Sub Type Office
Listing Status Active
Purchase Type For Sale
Square Footage 2,000 sqft
Price per Sqft $425
Subdivision Parmer Condo 11901
MLS Listing ID 1802264
Year Built 2007
Annual Tax Amount $15,490
Tax Year 2025
Lot Size 2,343 Sqft
Acres 0.0538
Property Sub-Type Office
Source actris
Property Description
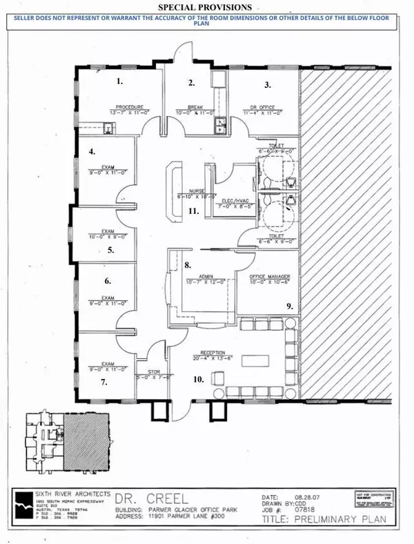
2nd GEN MEDICAL - MOVE-IN READY
Photos are from the previous occupant (medical); the current occupant is non-medical but did not change the build-out.
This 2000sf office condo includes: 4 exam rooms, 1 procedure room, 2 private offices, a waiting area, reception and checkout stations, nurses' station, and abundant parking.
Well-maintained, professional finishes.
Excellent location
Photos are from the previous occupant (medical); the current occupant is non-medical but did not change the build-out.
This 2000sf office condo includes: 4 exam rooms, 1 procedure room, 2 private offices, a waiting area, reception and checkout stations, nurses' station, and abundant parking.
Well-maintained, professional finishes.
Excellent location
Location
State TX
County Williamson
Interior
Heating Central
Cooling Central Air
Flooring Carpet, Tile, Vinyl
Fireplace No
Exterior
Utilities Available Electricity Connected, Sewer Connected, Water Connected
Total Parking Spaces 22
Building
Foundation Slab
Sewer Public Sewer
Water Public
Structure Type Stucco
New Construction No
Others
Special Listing Condition Standard
Listed by Waterloo Realty, LLC
GET MORE INFORMATION




